中铭宝翠园项目位于沙溪镇兴工路33号,沙溪镇工业大道与兴工路交汇处。占地约21800平方米,总建筑面积约62500平方米,计划户数453套,是中铭地产隶属利兴强集团2016年在沙溪镇新推的项目产品。 项目为高品质生活住宅小区,小区内外配套设施齐全。区内配套拥有游泳池,大型超市、酒店、会所等完善配套。咫尺之间,便是幼儿园至中学12年教育机构。可享受齐全的公交,医疗,金融等配套,轻松拥有吃、住、行、游、购、娱等服务。

08月30日 2019年
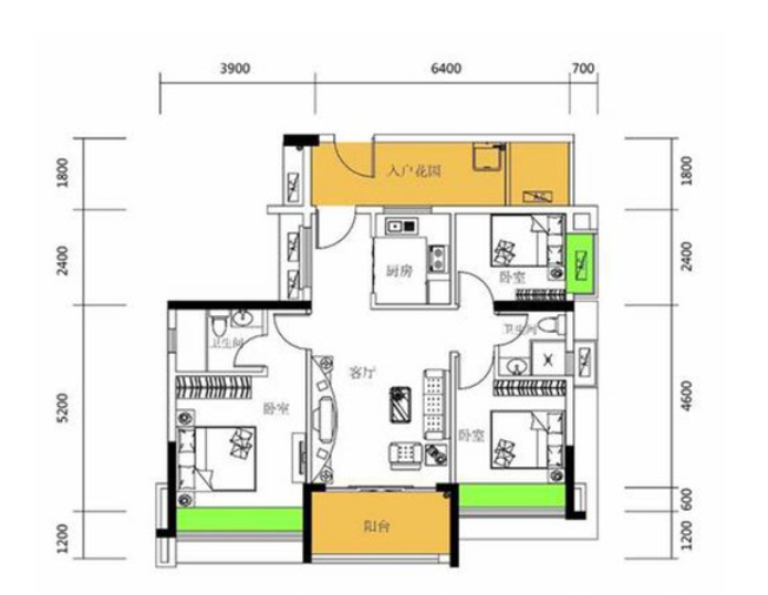
中铭宝翠园在售少量建面约81-134㎡三四房单位,户型方正,均价8800元/㎡左右,目前正在清盘,详情请咨询售楼部。
01月11日 2018年
中铭宝翠园在售建面约86-134㎡三四房单位,均价11000元/㎡左右,77-285㎡商铺招商中,详情请咨询销售中心。中铭宝翠园位于沙溪镇兴工路33号,沙溪镇工业大道与兴工路交汇处。占地约21800平方米,总建筑面积约62500平方米,计划户数453套,是中铭地产隶属利...更多>>
11月11日 2017年
中铭宝翠园在售建筑面积约87-134㎡三至四房单位,户型方正实用,均价10000元/㎡左右,详情请咨询销售中心。楼盘简介:中铭宝翠园项目位于沙溪镇兴工路33号,沙溪镇工业大道与兴工路交汇处。占地约21800平方米,总建筑面积约62500平方米,计划户数453套,是中铭地...更多>>
中铭宝翠园
沙溪镇
普通住宅
毛坯
2.4
35.37%
21800平米
8800元/m²
暂无资料
中铭宝翠园项目位于沙溪镇兴工路33号,沙溪镇工业大道与兴工路交汇处。占地约21800平方米,总建筑面积约62500平方米,计划户数453套,是中铭地产隶属利兴强集团2016年在沙溪镇新推的项目产品。 项目为高品质生活住宅小区,小区内外配套设施齐全。区内配套拥有游泳池,大型超市、酒店、会所等完善配套。咫尺之间,便是幼儿园至中学12年教育机构。可享受齐全的公交,医疗,金融等配套,轻松拥有吃、住、行、游、购、娱等服务。