中海世纪荟位于中山市港口镇,距深中通道落脚点港口高速出入口约800米,紧靠规划中的城轨一号线世纪东路站。占地面积约48326平方米,总建面约16.9万平方米,绿化率38%,公寓地块容积率3.0,住宅地块容积率2.5。邻近保利国际广场、红星美凯龙、港汇城等新商圈。低密度住宅,全能型公寓为主要卖点,项目不分期开发,住宅产品86平方米,公寓产品20-60㎡。

06月18日 2020年
中海世纪荟:在售建面约20-86平米一至三房,均价17000元/平方米起
中海世纪荟:在售建面约20-86平米一至三房,均价17000元/平方米起。预计2021年年初交楼。共2170户。中海世纪荟项目为小高层,高层。中海世纪荟项目位于港口镇,港口大道与世纪大道交叉口,距深中通道落脚点港口高速出入口约800米。
10月10日 2019年
中海世纪荟在售15栋建面约86㎡三房,赠送10㎡,南北对流,带装修,均价18500元/㎡,详情请咨询售楼处。
08月26日 2019年
中海世纪荟在售建面约20-60㎡Loft公寓,带装修,均价约17000-20000元/㎡,预计2021年3月交房。同时在售建面约86㎡三房单位,一梯两户设计,带装修均价19000元/㎡,预计2021年1月交房,详情请咨询售楼处。
户型解读: 各个空间户型方正,后期空间利用率高;整个空间全明通透,采光良好,同时利于居住空间通风;整体空间布局合理,能够保证动静分离和居室通风,方便使用;客厅、卧室、卫生间和厨房等主要功能间的尺寸以及比例适中,有利于采光和通风,居住起来舒适、方便;公摊高于15%且低于25%,符合住宅公摊正常范围。
1室1厅户型图 (1室1厅20.00㎡平米)
户型解读: 整体户型方正,活动区域开阔,居住舒适度高;整个空间全明通透,采光良好,同时利于居住空间通风;居室布局合理,通风良好,动静分离,兼顾到了卧室和卫生间的私密性;各个功能区的尺寸比例规范,布局合理,能很好地满足日常功能需求,整体空间开阔,采光充足,居住舒适度好;公摊高于15%且低于25%,符合住宅公摊正常范围。
3室2厅户型图 (3室2厅60.00㎡平米)
户型解读: 各个空间户型方正,方便室内家具布置;全明户型,各部分空间均有窗,可保证整体空间采光和通风,居住舒适度好;整个户型空间布局合理,做到了干湿分离、动静分离,方便后期生活;各个功能区的尺寸比例规范,布局合理,能很好地满足日常功能需求,整体空间开阔,采光充足,居住舒适度好;公摊高于15%且低于25%,符合住宅公摊正常范围。
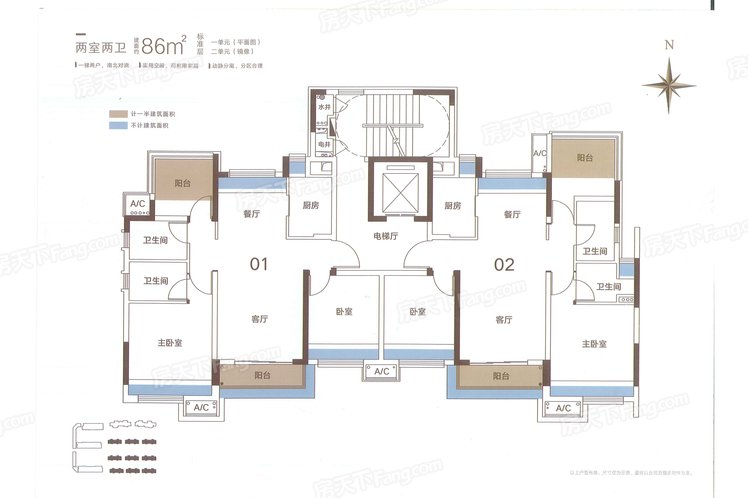
3室2厅户型图 (3室2厅86.00㎡平米)
户型解读: 整体户型方正,活动区域开阔,居住舒适度高;全明通透户型,居住舒适度较高,整个空间采光充足,利于后期居住;居室布局合理,通风良好,动静分离,兼顾到了卧室和卫生间的私密性;各个功能区的尺寸比例规范,布局合理,能很好地满足日常功能需求,整体空间开阔,采光充足,居住舒适度好;公摊高于15%且低于25%,符合住宅公摊正常范围。
1室1厅户型图 (1室1厅30.00㎡平米)
户型解读: 整体户型方正,活动区域开阔,居住舒适度高;整个空间全明通透,采光良好,同时利于居住空间通风;整体空间布局合理,能够保证动静分离和居室通风,方便使用;各个功能区的尺寸比例规范,布局合理,能很好地满足日常功能需求,整体空间开阔,采光充足,居住舒适度好;公摊高于15%且低于25%,符合住宅公摊正常范围。
2室1厅户型图 (2室1厅40.00㎡平米)
中海世纪荟
港口镇
普通住宅,酒店式公寓
非毛坯
2.5
38%
48326平米
17500元/m²
中海物业管理有限公司
中海世纪荟位于中山市港口镇,距深中通道落脚点港口高速出入口约800米,紧靠规划中的城轨一号线世纪东路站。占地面积约48326平方米,总建面约16.9万平方米,绿化率38%,公寓地块容积率3.0,住宅地块容积率2.5。邻近保利国际广场、红星美凯龙、港汇城等新商圈。低密度住宅,全能型公寓为主要卖点,项目不分期开发,住宅产品86平方米,公寓产品20-60㎡。